Rab-Palit - Apartman Marjetka 6+3

Palit 39, 51280 Rab, Kroatien

Nije ocijenjeno od 0 reviews
0/5
0% gostiju preporučuje

broj kreveta

6

spavaće sobe

3

kvadratura

110 m2

Lokacija

Palit

Opis

Apartman se nalazi na otoku Rabu u mjestu Palit, te je pogodan za 6+3 osoba.

Apartmani Perkič se nalaze na otoku Rabu u obiteljskoj kući u blizini mora i plaže, u turističkom naselju Mali Palit.
Nudimo tokom cijele godine ugodan odmor i čisto opuštanje.
Stojimo Vam na raspolaganju povodom dodatnih pitanja u vezi vašeg boravka.

Opis apartmana:
Stan - Marijeta se nalazi u prizemlju obiteljske kuće.
Objekt je bez zapreka osobama u invalidskim kolicima / seniori / djecu /
(Lako dostupna, bez stepenica / koraka, sa širokim vratima), 1 kupaonica - WC / WC i kupatilo s ručkama za držanje.
Natkriveno s tendom, BBQ terasa, veliki vrt.
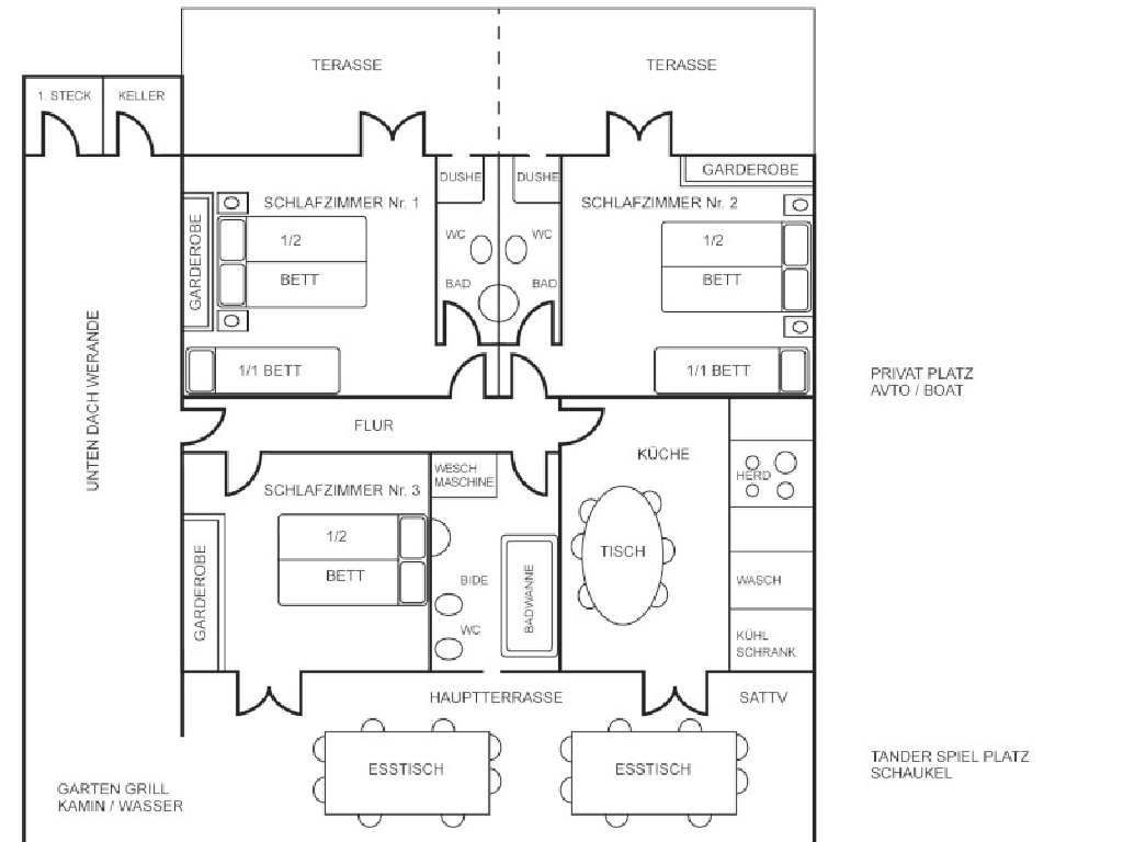
Sastoji se od potpuno opremljena kuhinja (štednjak 2 + 2, hladnjak sa zamrzivačem, mikrovalna pečnica, aparat za kavu, stroj za pranje posuđa, puni posuđe i pribor za jelo i sl), blagovaonica i 3 spavaće sobe, svaka soba ima vlastitu kupaonicu i pristup velikom terasom.
-Nr.1 - Spavaća soba: bračni krevet, kupaonica s WC-om, bide, kupaonica (perilica rublja) i terase.
-Nr.2 - Spavaća soba: bračni krevet, krevet za jednu osobu, kupaonica s tušem, WC-om i terasa.
-Nr.3- Spavaća soba: bračni krevet, kauč na razvlačenje za 1-2 osobe, kupatilo sa tuš kabinom, WC-om i terasa.

Oba apartmana imaju: digitalnu televiziju i bežični internet urečaj za hlačenje vode visoke kvalitete AQUA VIVA, stroj za pranje rublja i posuđa.
Na raspolaganju gostima su:
Dva roštilj područja, ugljena i roštilj s plinom, sudoper i pitke vode, vanjski tuš, ležaljke i suncobrani. velike i dobro opremljene terasu za 20 osoba i dječje igralište s ljuljačkama.
lijepo urečenim vrtom 1500 m², s voćkama i mediteranskim raslinjem, okružen ogradom, gdje se djeca mogu igrati sigurno.
Parkiralište za automobile i malim brodicama u privatnom parkingu kuće.

Rezervacije su za svaki stan pojedinačno moguče da max.9 osobe, ili
za oba apartmana kao cijele kuće s kapacitetom od 12 + 6 kreveta, odnosno do maksimalno 18 ljudi.

U blizini naše kuće su: trgovački centri, sportski centar s teniskim terenima 3, iznajmljivanje brodova, iznajmljivanje bicikla i skutera, banke, pošta, ribarnica, restorana i barova i bogatu turističku ponudu.
Turizam Centar, 250 m. od naše kuće (2 do 10-ak minuta hoda).
Možete posjetiti znamenitosti starog grada Raba, prošećite prekrasnom parku prirode Komrčar ili koristiti cjelodnevni izlet brodom / dan više od 10 programa / ili navečer uživati u bogatom kulturno / zabavni život.
Rab je rajsko mjesto za Vaš odmor - posjet Rabu, i želite se vratiti.
Rab je otok s kristalno čistim morem, s više od 122 plaža, sunce, ljepotu, ljubav i pažnju.

Objekat - Kuća LOKACIJA: Kuća Perkič Apartmani Marjeta i Tina

Na otoku Rabu, izvan centra, blizu grada (200m) u turističkom naselju Mali Palit. Bruder Restaurant RIO, s izvrsnom kuhinjom, nalazi se 50m od kuće. Ostali sadržaji uključuju poštu, banke, more, marinu, Park prirode Komrčar, sportski centar, teniske terene, tržnicu, ribarnicu, supermarket i prekrasne plaže, uključujuči nudističku plažu.

Parkiranje: ispred kuće i za prikolice za brodove. Ograđeni vrt. Prostran, ograđen vrt (2000 m²) sadrži voćke i mediteransko bilje, dječje igralište s ljuljačkama i veliku, privlačnu terasu s vrtnim namještajem, suncobranima, ležaljkama i sjedečom garniturom na suncu i u hladu.
Na raspolaganju su dva različita roštilja (na ugljen i plin) i vanjski sudoper. Tu je i zajednički vanjski tuš.
...
Terasa nudi sjedeču garnituru na suncu i u hladu.
Želimo da se naši gosti osječaju kao kod kuče od trenutka dolaska!


Dobrodošli!

Najam tijekom cijele godine.

Vrsta smještaja

Apartman Apartman
3 zvjezdice 3 zvjezdice

Sadržaji u sklopu objekta

Vrt Vrt
Parkiralište Parkiralište
Suncobran Suncobran
Ležaljke Ležaljke
Vrtni namještaj Vrtni namještaj
Roštilj Roštilj
Terasa / Balkon Terasa / Balkon
Dječje igralište Dječje igralište

Sadržaji u objektu

Klima uređaj Klima uređaj
Perilica posuđa Perilica posuđa
Perilica za rublje Perilica za rublje
Hladnjak Hladnjak
Zamrzivač Zamrzivač
Televizor Televizor
Mikrovalna pećnica Mikrovalna pećnica
Mikser Mikser
Aparat za kavu Aparat za kavu
Toster Toster
Kuhalo za vodu Kuhalo za vodu
Sušilica rublja Sušilica rublja
Wi-Fi / Internet Wi-Fi / Internet
Pristupačno za osobe s invaliditetom Pristupačno za osobe s invaliditetom

Uključeno u cijenu

Posteljina Posteljina
Ručnici Ručnici
Internet Internet
Klima uređaj Klima uređaj
Parkiralište Parkiralište
Turistička pristojba Turistička pristojba

Prikladno za:

Djecu Djecu
Starije ili nemočne osobe Starije ili nemočne osobe
Pristup za invalidska kolica Pristup za invalidska kolica
kučni ljubimci kučni ljubimci
pušače pušače

Često postavljana pitanja

Dolazak od:
14:00
Odlazak do:
10:00
Koji se jezici tamo govore?
hrvatski, english, deutsch, italiano, français, slovenski
Mogu li povesti svog kućnog ljubimca?
Das mitbringen von Haustieren ist nur dann erlaubt wenn es unter "Eigenschaft: Geeignet für:" angegeben ist, oder nach Vereinbarung
Je li pušenje dozvoljeno?
Das Rauchen ist nur dann erlaubt wenn es unter "Eigenschaft: Geeignet für:" angegeben ist.

Što je u blizini

u blizini
Plaža (500m)
Bank / Bankomat: (200m)
Restoran (100m)
Tržnica (200m)
Supermarket (200m)
Konzum
Dječje igralište (300m)
Zdravlje
Apoteka (250m)
Doktor / Bolnica (300m)
Promet
Zračna luka (70km)
Željeznička stanica (110km)
Rijeka
Trajekt (10km)
Stinica
Benzinska postaja (350m)

Lokacija

Recenzije

0/5
Nije ocijenjeno
Na temelju 0 recenzija
Izvrsno
0
Vrlo dobro
0
Prosječno
0
slabo
0
Strašno
0
Nema recenzije
Morate se prijaviti da biste napisali recenziju

Miljenko Perkić Potvrđeno

Korisnik od Nov 2025

od 0,00 €

Dodatne cijene:

({{ type.price_type }})
{{ type.price_html }}

Popusti:

{{ type.from }} - {{ type.to }} noć od {{ type.from }} noć
- {{ formatMoney(type.total) }}
({{ type.price_type }})
{{ type.price }}%
{{ formatMoney(type.price) }}
  • {{ total_price_html }}
  • {{ pay_now_price_html }}
od
0,00 €
0 Recenzija